Hana House – ngôi nhà thể hiện sự hòa hợp giữa con người với thiên nhiên, nơi kết nối cảm xúc và gắn kết các thế hệ. Sự đối lập, tương phản giữa bên trong và bên ngoài, giữa cứng cáp và uyển chuyển, giữa ồn ào của phố thị và sự tĩnh lặng trong không gian sống.
Chiêm ngưỡng, khám phá Hana House là một quá trình trải nghiệm thú vị. Nhìn từ bên ngoài, công trình tựa như một chiếc hộp lớn màu trắng tinh khiết, nổi bật và độc đáo tạo nên sự tò mò và thích thú muốn tiếp cận gần hơn. Lối vào nhà với cổng lớn và thu hẹp dần đến cánh cửa tạo cảm giác bó hẹp cho người vào. Bước qua cánh cửa là một không gian mở hoàn toàn. Không gian khách, bếp, sinh hoạt và nghỉ ngơi kết nối với nhau qua hành lang.
Mỗi vị trí trong căn nhà tạo nên một góc nhìn khác nhau, được bố trí có ý đồ nhằm tạo nên bức tranh thú vị. Kiến trúc sư bố trí các không gian chức năng bám theo đường uốn lượn để tối đa hóa được sự kết nối giữa trong và ngoài, giữa đặc và rỗng, giữa con người với thiên nhiên.
Kết cấu của ngôi nhà được tạo nên từ những sự tương phản khác nhau: Vuông – tròn, cong – thẳng. Với hình khối chữ nhật, Hana House như một thực thể sống kết nối con người với thiên nhiên bổ trợ và hòa quyện để tồn tại.
|
|
| Ngôi nhà nhà tọa lạc ở ven sông tại một thành phố đang trên đà phát triển đô thị mới. Chị Hương – gia chủ là một nhà thiết kế thời trang. |
 |
| Chị Hương chia sẻ, ngôi nhà đối với chị là một tác phẩm nghệ thuật, nơi các thành viên gia đình được trải nghiệm qua từng bước chân đi lại. Đây cũng chính là mục tiêu được đặt ra khi bắt đầu triển khai thiết kế Hana house. |
 |
| Không gian sống tách biệt với sự ồn ào và xô bồ của phố thị. Ngôi nhà là nơi để thư giãn, để trở về sau một ngày dài làm việc bận rộn. |
|
|
| Dựa trên mong muốn của gia chủ và bối cảnh hiện trạng sẵn có, kiến trúc sư tạo ra một ngôi nhà có không gian hướng nội, đề cao sự kết nối của các hoạt động, giúp tăng sự tương tác giữa các thành viên gia đình. |
 |
| Kiến trúc sư sử dụng cấu trúc tương phản với hình khối vuông đơn giản bao bọc bên ngoài tương phản với các đường uốn lượn bên trong. Cấu trúc lồng vào nhau này giúp hạn chế tương tác với bên ngoài mà vẫn đảm bảo sự thoáng mát bên trong. |
 |
| Những khoảng nghỉ, thư giãn tinh tế trong Hana House. |
 |
| Phía trong nhà là không gian lõi uốn lượn tạo nên một trải nghiệm khung nhìn thú vị cho các thành viên gia đình. |
 |
| Phần rỗng là nơi tập trung ánh sáng, gió, cây xanh. Lõi không gian mở, kết nối các không gian khách bếp, đồng thời làm mờ đi ranh giới trong và ngoài. Tất cả kết hợp với tiếng cười nói của các thành viên trong gia đình tạo nên một không khí thật sống động. |
 |
| Nội thất ngôi nhà được thiết kế theo phong cách hiện đại, tối giản nhằm tạo ra không gian sống thoáng đãng, ngập tràn ánh sáng tự nhiên. |
|
|
| Nội thất uốn lượn hài hòa với cấu trúc tường nhà. Ô cửa sổ kính mở ra lõi trung tâm với nhiều nắng gió, cây xanh. |
 |
| Phòng tắm phong cách mở phóng khoáng. |
 |
| Phòng tắm với tầm nhìn rộng mở ra khoảng sân vườn xanh mát bên ngoài. |
|
|
| Cầu thang ngoài trời ở khu vực lõi trung tâm, kết nối các không gian nhà với nhau. Đây cũng chính là điểm nhấn kiến trúc ấn tượng. |
|
|
| Các mảng xanh thiên nhiên được đưa vào không gian sống một cách khéo léo. |
|
|
| Các phòng trong nhà đều có cửa sổ kính mở ra lõi trung tâm đón nắng gió. |
|
|
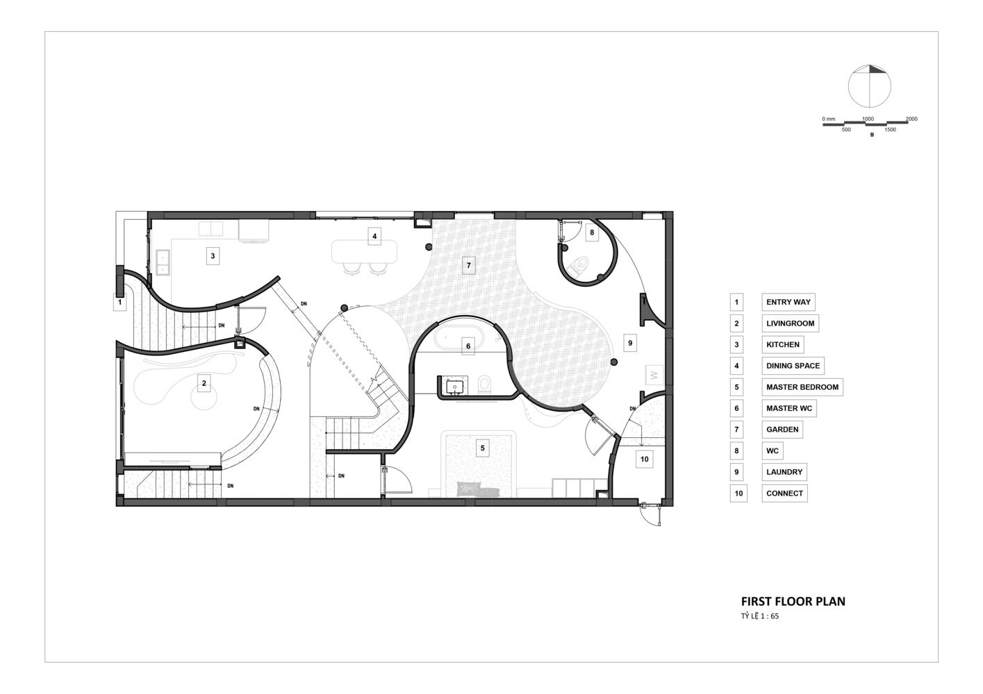
| Mặt bằng thiết kế tầng 1 ngôi nhà |
|
|
| Mặt bằng chức năng tầng 2 |
|
|
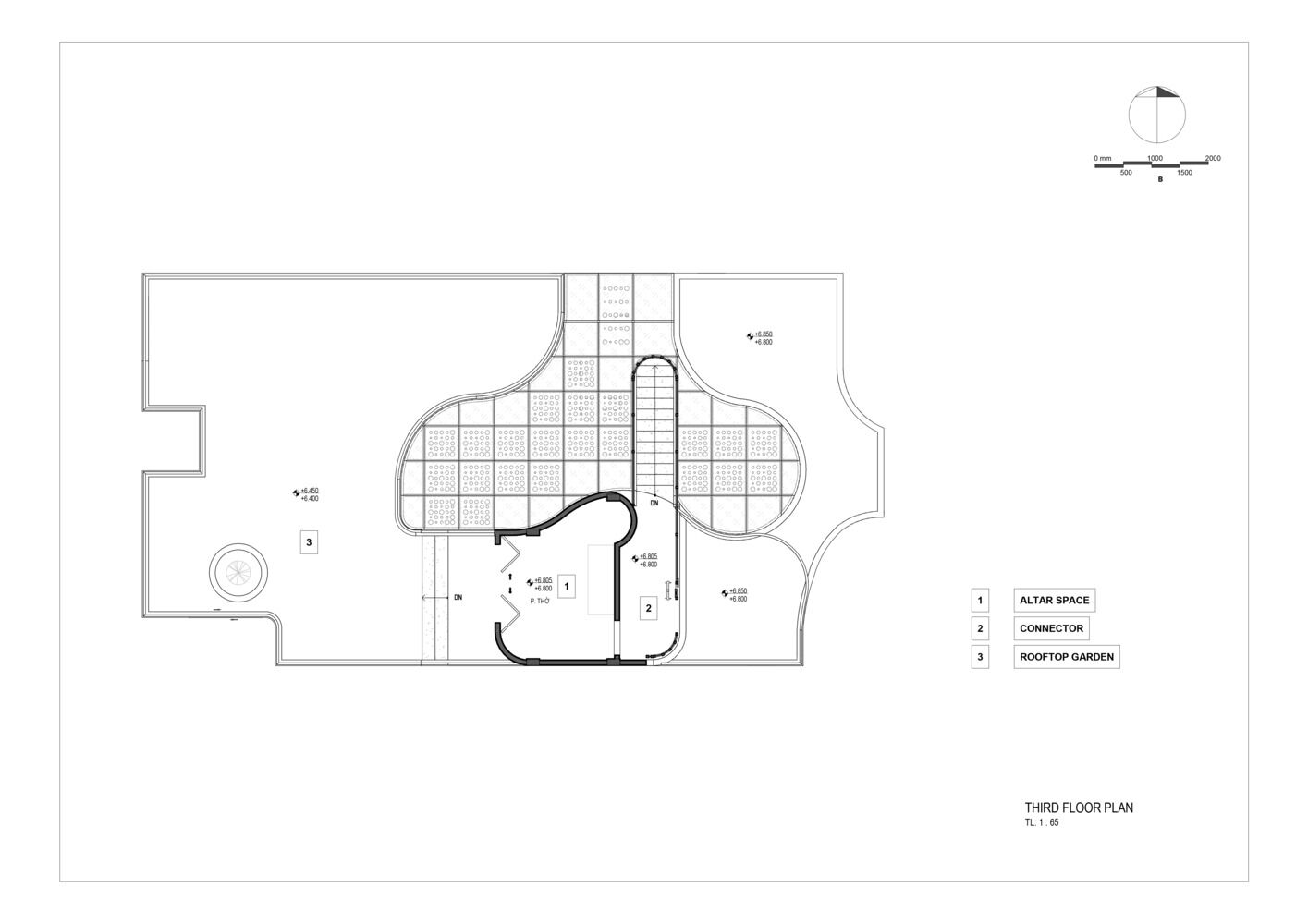
| Mặt bằng chức năng tầng 3 |
Thông tin công trình:
Lam Giang (ArchDaily)
>>
>>
>>
Trường Phát Thịnh chuyên cung cấp các dịch vụ
xây nhà trọn gói,
xây nhà phần thô. Ngoài ra chúng tôi còn cung cấp dịch vụ
hoàn thiện nội thất là dịch vụ dành cho những khách hàng có nhu cầu thay đổi thiết kế nội thất, những khách hàng đã hoàn thành phần xây thô mà chưa hoàn thiện nội thất hoặc khách hàng muốn bổ sung, hoàn thiện hơn nội thất căn nhà.
Trường Phát Thịnh nhận
hoàn thiện nhà xây thô các loại như: Hoàn thiện nhà xây thô, chung cư, nhà liền kề, biệt thự, văn phòng cơ quan, nhà cao tầng,…
Chúng tôi luôn tự hào trong việc mang đến dịch vụ thiết kế kiến trúc đáng tin cậy mang đầy tính cảm hứng, thiết thực và tận tâm để làm hài lòng khách hàng, cải thiện môi trường tự nhiên và tạo không gian sống lý tưởng.
Quý khách cho nhu cầu xây dựng,
sửa chữa nhà hoặc cần tư vấn, xin vui lòng liên hệ .
CÔNG TY TNHH XÂY DỰNG TRƯỜNG PHÁT THỊNH
- Địa chỉ: 1024/1A Tỉnh lộ 10, KP7, P. Tân Tạo, Q. Bình Tân, TP.HCM
- Văn phòng: OF15, Lầu 3, Moonlight Park View, 36-40 Đường số 7, An Lạc A, Bình Tân, TP.HCM
- Hotline: 0906 990 350 – 0916 990 350
- Email: [email protected]
- Web: https://xaydungtruongphatthinh.com