“Ngõ nhỏ, phố nhỏ, nhà tôi ở đó” – câu hát nhẹ nhàng mà sâu lắng đã đi vào tâm khảm của bao người con Hà Nội. Căn nhà phố đối với mỗi người luôn là “báu vật”, nơi lưu giữ bao kỷ niệm từ thuở ấu thơ, không ai nỡ rời xa. Gia đình chị Linh, người con phố cổ cũng không ngoại lệ.
Dù cho con cái đã thành đạt, mỗi người sở hữu một căn biệt thự to đẹp tại Khu đô thị Vinhomes Riverside. Thế nhưng, gia đình chị không muốn dời đi khỏi căn nhà phố thân quen ấy.
Với 900 triệu đồng chi phí thi công trọn gói, căn nhà phố của gia đình chị Linh đã được cải tạo lại theo phong cách Tân cổ điển sang trọng, bố trí công năng hợp lý.
 |
| Kiến trúc sư cải tạo nội thất nhà phố 85m2 theo phong cách Tân cổ điển với bảng màu trung tính nhẹ nhàng, tinh tế, gây thiện cảm ngay từ ánh nhìn đầu tiên. |
 |
| Đường nét thiết kế nội thất từ phào chỉ đến đồ đạc, vật dụng trang trí đều định hình phong cách Tân cổ điển rõ nét. Phòng khách và kế cận nhau những vẫn đảm bảo sự phân tách tương đối, đảm bảo lưu thông thuận tiện. |
 |
| Góc trang trí gọn xinh với bàn phụ, tranh treo tường tông màu trang nhã. |
 |
| Phòng khách và phòng ăn chia sẻ, “vay mượn” không gian của nhau một cách linh hoạt, nhất là dịp lễ Tết, tụ họp cả đại gia đình. |
 |
| Bếp chữ U tiện nghi và sang chảnh. Hệ tủ lưu trữ đa năng, vừa đảm bảo công thái học, vừa tạo điểm nhấn hút mắt. |
 |
| Không gian phòng ăn, sảnh hành lang nhìn từ phòng bếp. Mọi ngóc ngách trong nhà phố đều rất thoáng đãng nhờ trần cao và bảng màu trắng chủ đạo. |
|
|
| Căn “Duplex nhà phố” được thể hiện sinh động nhất ở không gian này. Thiết kế kiểu thông tầng cao thoáng, đẹp mê. |
|
|
| Nhìn từ góc độ này, không gian nhà phố như “bước” ra từ tạp chí nội thất, khiến người ngắm khó rời mắt. |
|
|
| Bộ đèn thả trần tạo điểm nhấn sáng trọng vừa phải, không quá phô trương. |
|
|
| Phòng ngủ master rộng rãi, sử dụng nội thất sang trọng tông màu be sáng. Đệm ốp đầu giường như một điểm nhấn sang trọng, đẳng cấp cho không gian ngủ nghỉ. |
|
|
| Phòng ngủ khá nhỏ hẹp nhưng không hề tạo cảm giác chật chội, bí bức bởi bố cục không gian khoa học, bài trí nội thất khéo léo với tông màu trắng sáng trang nhã. |
|
|
| Một phòng ngủ khác trên gác lửng tích hợp không gian làm việc tại nhà tiện nghi. Những bức tường trống được tận dụng triệt để nhằm tối ưu hóa diện tích sử dụng. |
|
|
| Đèn sàn kiểu dáng lạ mắt là điểm nhấn ấm áp cho căn phòng. |
 |
| Không gian trò chuyện, thưởng trà, đọc sách trên gác lửng. Thiết kế nội thất kết hợp giữa Tân cổ điển và nét thiền tịnh kiểu Nhật. |
|
|
| Tủ kệ lưu trữ thông minh trong phòng tắm – vệ sinh. |
|
|
| Gạch ốp tường màu sắc mang đến cái nhìn mới lại cho không gian phòng tắm. |
|
|
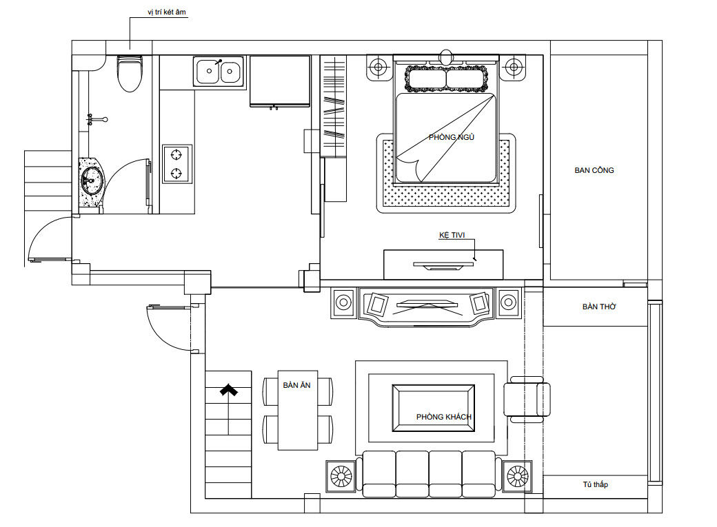
| Sơ đồ bố trí nội thất tầng 1 nhà phố |
|
|
| Không gian nội thất được bố trí khoa học |
 |
| Mặt bằng gác xép 2 |
Thông tin công trình:
-
Chủ nhà: Chị Linh
-
Diện tích: 85m2
-
Chi phí trọn gói: 900 triệu đồng (đã bao gồm chi phí phá dỡ cải tạo xây dựng).
-
Mong muốn của gia chủ: Không gian sống sang trọng, công năng hợp lý.
-
Phong cách thiết kế: Tân cổ điển
-
Vật liệu: Kết hợp gỗ sồi tự nhiên và gỗ MDF lõi xanh chống ẩm sơn màu theo phối cảnh.
-
Đơn vị thiết kế thi công nội thất: Công ty Cổ phần Nội thất WoodPlus
-
Địa chỉ: 16 ngõ 172 Nguyễn Tuân, Thanh Xuân, Hà Nội
-
Điện thoại: 0961656586
-
Website: https://NhaDepWoodPlus.com/
Lam Giang
>>
>>
Trường Phát Thịnh chuyên cung cấp các dịch vụ
xây nhà trọn gói,
xây nhà phần thô. Ngoài ra chúng tôi còn cung cấp dịch vụ
hoàn thiện nội thất là dịch vụ dành cho những khách hàng có nhu cầu thay đổi thiết kế nội thất, những khách hàng đã hoàn thành phần xây thô mà chưa hoàn thiện nội thất hoặc khách hàng muốn bổ sung, hoàn thiện hơn nội thất căn nhà.
Trường Phát Thịnh nhận
hoàn thiện nhà xây thô các loại như: Hoàn thiện nhà xây thô, chung cư, nhà liền kề, biệt thự, văn phòng cơ quan, nhà cao tầng,…
Chúng tôi luôn tự hào trong việc mang đến dịch vụ thiết kế kiến trúc đáng tin cậy mang đầy tính cảm hứng, thiết thực và tận tâm để làm hài lòng khách hàng, cải thiện môi trường tự nhiên và tạo không gian sống lý tưởng.
Quý khách cho nhu cầu xây dựng,
sửa chữa nhà hoặc cần tư vấn, xin vui lòng liên hệ .
CÔNG TY TNHH XÂY DỰNG TRƯỜNG PHÁT THỊNH
- Địa chỉ: 1024/1A Tỉnh lộ 10, KP7, P. Tân Tạo, Q. Bình Tân, TP.HCM
- Văn phòng: OF15, Lầu 3, Moonlight Park View, 36-40 Đường số 7, An Lạc A, Bình Tân, TP.HCM
- Hotline: 0906 990 350 – 0916 990 350
- Email: [email protected]
- Web: https://xaydungtruongphatthinh.com